
|
|
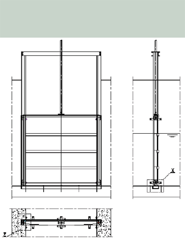
Dikdörtgen sekilli BIOLAND duvar kapakları; genellikle havuzların giris
ve çıkıslarında akıs kontrolü için kullanılmaktadır. Duvar kapaklarının
genis bir boyut aralıgı bulunmakta ve kapatılacak açıklıga göre özel
dizayn yapılmaktadır. BIOLAND duvar kapakları temel olarak asagıdaki
parçalardan olusur;
01- ÇERÇEVE: Sistemin tasıyıcı kısmıdır. Duvar kapakları montaj
derinligine baglı olarak açık yada kapalı çerçeve olarak dizayn edilirler.
Karbon çelik veya paslanmaz çelik profilden üretilmektedir.
02 - KAPAK: Kapak düz yüzeyli dizayn edilmektedir ve çerçeve
içerisinde asagı - yukarı hareket etmektedir. Karbon çelik veya
paslanmaz çelik profilden üretilmektedir.
03 - CONTA: Contalama malzemesi olarak P,V ve çift dudaklı tip
kauçuk conta kullanılır ve contalama duvar kapaklarının 4 tarafına
uygulanır. Contalar için standart malzeme olarak EPDM kullanılmakla
beraber, özel uygulamalar için farklı conta malzemeleri mümkündür.
Bu konuda lütfen BIOLAND’ ı arayınız. Fabrikasyon kapaklarda tamamen
sızdırmazlık garanti edilememekte, kapagın maruz kalacagı
basıncın degeri ve yönüne baglı olarak farklı sızıntı miktarları gözlenebilmekterir.
1 m conta boyu için ( 5 m on seat veya 4 m off-seat
basınç altında) 0,4 litre/dk sızıntı olacagı tahmin edilebilir.
04 - MIL: Standart BIOLAND kapakları, yükselen milli olarak dizayn
edilir fakat, yükselmeyen mil müsteri istegi dogrultusunda üretilmektedir.
1500 mm genislige kadar, tek mil kullanılmaktadır; daha büyük
genislikler için genellikle çift mil tipli model kullanılmaktadır. |